South of Main
Selling NowSouth of Main
Selling NowNA
Lambton Shores, ON
Log In to Your Account
Project Description
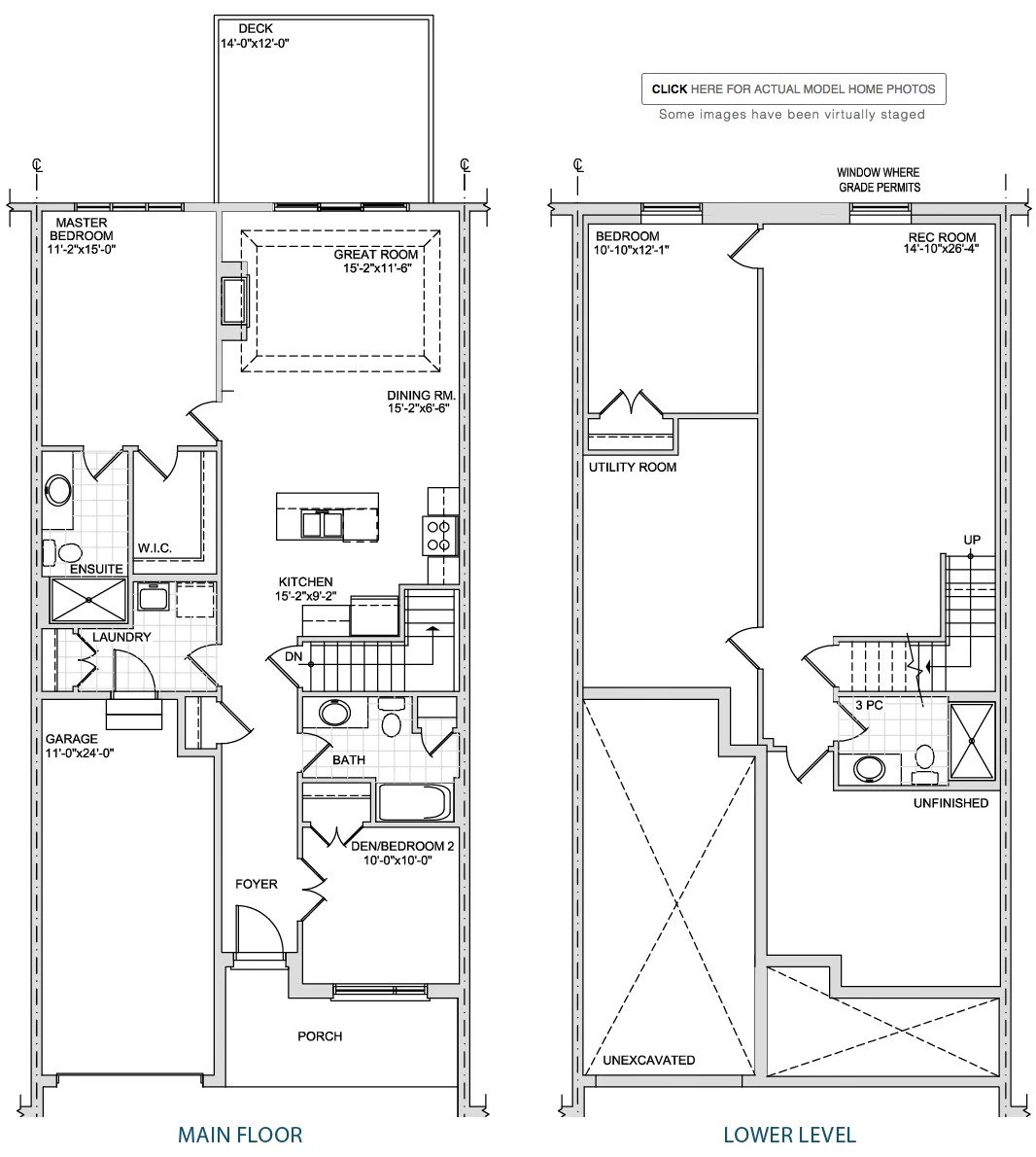
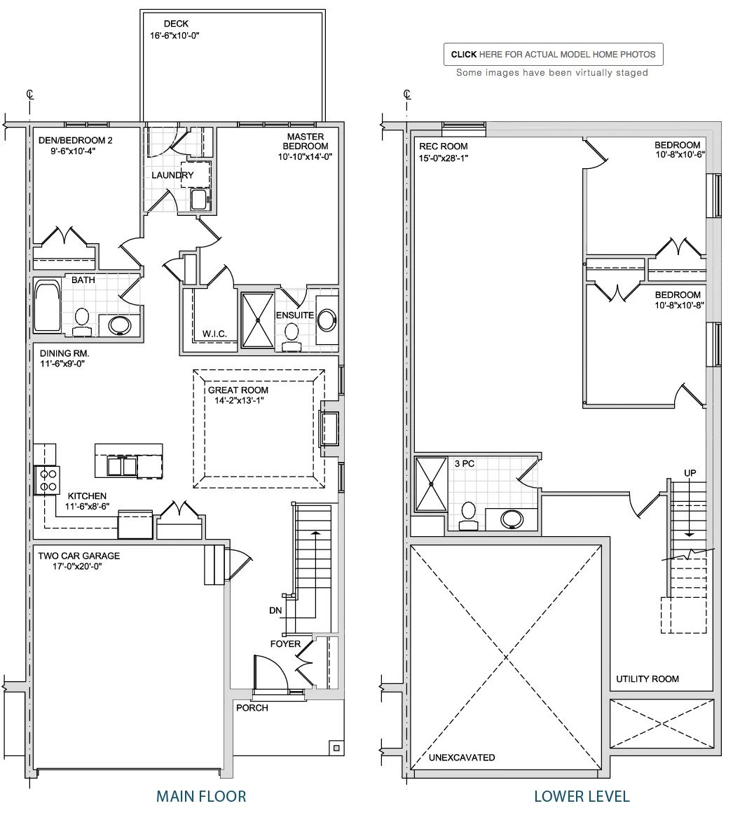
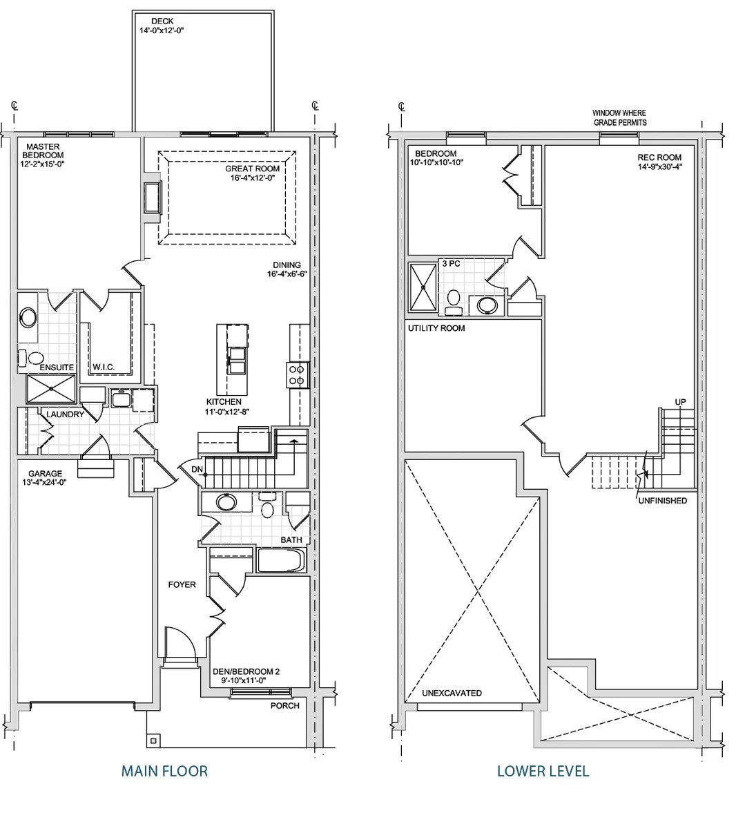
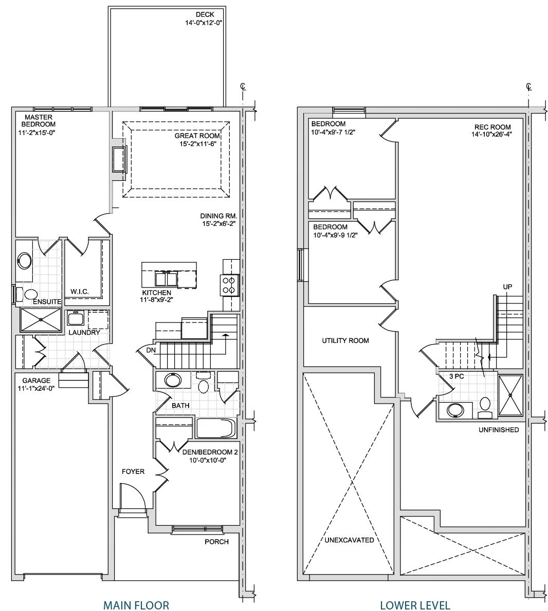
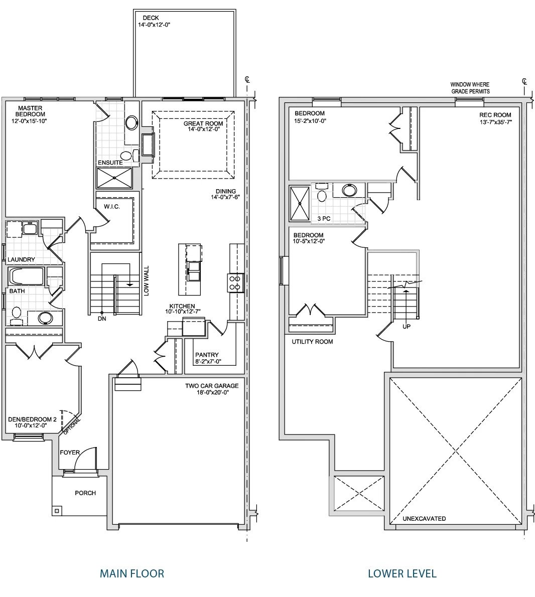
Welcome to South of Main, Ontario's West Coast idyllic coastal village by Medway Homes. Enjoy beach living with stunning sunsets, white sand beaches, and crystal blue waters. Live a wellness-inspired, amenity-rich lifestyle where walking everywhere is a pleasure. Medway Homes, with 25 years of experience, builds exceptional custom-designed estates and new home communities. Choose from three or four-bedroom, three-bathroom bungalows with superior features and finishes in semi, 3-plex, or 4-plex blocks. Experience the tranquillity and freedom of this unique beach town community.
Project Facts
Features & Finishes
South of Main by Medway Homes offers sun-kissed bungalow beach town villas in a beach community. Impressive exterior details, superior electrical & mechanical elements, advanced thermal protection, upscale interior qualities, unique bathroom characteristics, gourmet kitchen essentials, and fabulous flooring highlights elevate the living experience. Structural properties include 5/8" oriented strand board sub-flooring and 2x6 exterior wall construction. Enjoy an unparalleled lifestyle with breathtaking views and exceptional craftsmanship.
/small.webp)
